別名:雙法蘭伸縮器 雙法蘭傳力接頭
型號:VSSJAF(C2F)型
規格:DN65mm-DN3200mm
VSSJAF(C2F)雙法蘭松套傳力接頭簡單介紹:
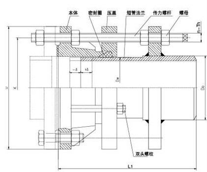
c2f型雙法蘭松套傳力接頭是泵、閥門,管道等設備與管道連接的新產品,通過全螺栓把它們連接起 來,使其成為整體,并有一定的位移量,方便安裝。可承受管線的軸向壓力。這樣就可以在安裝維修 時,根據現場安裝尺寸進行調整,在工作時,不僅提高工作效率,而且對泵、閥們等管道設備起到一 定保護作用。
VSSJAF(C2F)雙法蘭松套傳力接頭結構示意圖:
VSSJAF(C2F)雙法蘭松套傳力接頭優勢:
在管道中發揮著連接作用的就是傳力接頭是中國的凈水排污行業中不可缺少的設備,在整個排污的環 節中發揮著不可缺少的作用。正因為如此,傳力接頭在凈水行業中以飛快的速度往前發展。中國不僅 是一個農業大國,也是一個機械大國,每個城鎮都建立著各種工廠,工廠排放出來的污水要進行合理 的排泄,而不能對村莊和人民造成污染危害。
VSSJAF(C2F)雙法蘭松套傳力接頭用途:
傳力接頭的適用介質在整個管道系統中的用途,這個產品在整個管道系統是起的一個連接作用的,管 道系統是用來傳輸物質,主要適用于以下等等物質,煤氣、空氣、原油、燃油、生活污水、潤滑油、 淡水、輸送海水、冷熱水、飲用水、成品油、并且這些物質的溫度是不高于250度的蒸汽和顆粒粉狀 等介質的。因為這些物質主要是通過管道進行傳輸,管道傳輸過程中,這些物質肯定會經過傳力接頭 或者伸縮接頭這個連接處,那么連接處直接就關系到整個管道系統是否是一個良性的傳輸過程,這個用途是非常重要而且直觀的,其中微妙之處就在于連接,一個傳承,一個傳力,這就是伸縮接頭的用途。
型號:VSSJAF(C2F)型
規格:DN65mm-DN3200mm
VSSJAF(C2F)雙法蘭松套傳力接頭簡單介紹:
c2f型雙法蘭松套傳力接頭是泵、閥門,管道等設備與管道連接的新產品,通過全螺栓把它們連接起 來,使其成為整體,并有一定的位移量,方便安裝。可承受管線的軸向壓力。這樣就可以在安裝維修 時,根據現場安裝尺寸進行調整,在工作時,不僅提高工作效率,而且對泵、閥們等管道設備起到一 定保護作用。
VSSJAF(C2F)雙法蘭松套傳力接頭結構示意圖:

在管道中發揮著連接作用的就是傳力接頭是中國的凈水排污行業中不可缺少的設備,在整個排污的環 節中發揮著不可缺少的作用。正因為如此,傳力接頭在凈水行業中以飛快的速度往前發展。中國不僅 是一個農業大國,也是一個機械大國,每個城鎮都建立著各種工廠,工廠排放出來的污水要進行合理 的排泄,而不能對村莊和人民造成污染危害。
VSSJAF(C2F)雙法蘭松套傳力接頭用途:
傳力接頭的適用介質在整個管道系統中的用途,這個產品在整個管道系統是起的一個連接作用的,管 道系統是用來傳輸物質,主要適用于以下等等物質,煤氣、空氣、原油、燃油、生活污水、潤滑油、 淡水、輸送海水、冷熱水、飲用水、成品油、并且這些物質的溫度是不高于250度的蒸汽和顆粒粉狀 等介質的。因為這些物質主要是通過管道進行傳輸,管道傳輸過程中,這些物質肯定會經過傳力接頭 或者伸縮接頭這個連接處,那么連接處直接就關系到整個管道系統是否是一個良性的傳輸過程,這個用途是非常重要而且直觀的,其中微妙之處就在于連接,一個傳承,一個傳力,這就是伸縮接頭的用途。
公稱通徑DN | 管子外徑DW | 法蘭連接尺寸 | 密封面d | 總長L | 安裝尺寸L1 | 調節量 △ | ||||
法蘭外徑D | 螺栓孔中心圓直徑K | 螺栓孔徑DO | 螺栓 | |||||||
n/個 | Th | |||||||||
65 | 76 | 185 | 145 | 18 | 4 | M16 | 118 | 330 | 200 | 20 |
80 | 89 | 200 | 160 | 8 | 132 | |||||
100 | 114 | 220 | 180 | 156 | ||||||
125 | 140 | 250 | 210 | 184 | ||||||
150 | 168 | 285 | 240 | 22 | M20 | 211 | 340 | |||
200 | 219 | 340 | 295 | 266 | ||||||
250 | 273 | 395 | 350 | 12 | 319 | |||||
300 | 325 | 440 | 400 | 370 | 370 | 220 | 25 | |||
350 | 377 | 505 | 460 | 16 | 429 | |||||
400 | 426 | 565 | 515 | 26 | M24 | 480 | 380 | |||
450 | 480 | 615 | 565 | 20 | 530 | |||||
500 | 530 | 670 | 620 | 582 | ||||||
600 | 630 | 780 | 725 | 30 | 24 | M27 | 682 | 420 | 240 | |
700 | 720 | 890 | 840 | 794 | ||||||
800 | 820 | 1015 | 950 | 33 | M30 | 901 | 560 | 350 | 30 | |
900 | 920 | 1115 | 1050 | 28 | 1001 | |||||
1000 | 1020 | 1230 | 1160 | 36 | M33 | 1112 | ||||
1200 | 1220 | 1455 | 1380 | 39 | 32 | M36 | 1328 | 600 | 370 | |
1400 | 1420 | 1675 | 1590 | 42 | 36 | M39 | 1530 | 630 | ||
1600 | 1620 | 1915 | 1820 | 48 | 40 | M45 | 1750 | 670 | 380 | |
1800 | 1820 | 2115 | 2020 | 44 | 1950 | |||||
2000 | 2020 | 2325 | 2230 | 48 | 2150 | 690 | 400 | |||
2200 | 2220 | 2550 | 2440 | 56 | 52 | M52 | 2370 | 730 | ||
2400 | 2420 | 2760 | 2650 | 56 | 2570 | |||||
2600 | 2620 | 2960 | 2850 | 60 | 2780 | 820 | 450 | 40 | ||
2800 | 2820 | 3180 | 3070 | 64 | 3000 | |||||
3000 | 3020 | 3405 | 3290 | 60 | 68 | M56 | 3210 |