型號:VSSJAF(C2F)型
規格:DN65mm-DN3200mm
VSSJAF(C2F)雙法蘭松套傳力接頭簡單介紹: c2f型雙法蘭松套傳力接頭是泵、閥門,管道等設備與管道連接的新產品,通過全螺栓把它們連接起 來,使其成為整體,并有一定的位移量,方便安裝。可承受管線的軸向壓力。這樣就可以在安裝維修 時,根據現場安裝尺寸進行調整,在工作時,不僅提高工作效率,而且對泵、閥們等管道設備起到一 定保護作用。
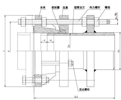
VSSJAF(C2F)雙法蘭松套傳力接頭結構示意圖:

VSSJAF(C2F)雙法蘭松套傳力接頭用途: 傳力接頭的適用介質在整個管道系統中的用途,這個產品在整個管道系統是起的一個連接作用的,管 道系統是用來傳輸物質,主要適用于以下等等物質,煤氣、空氣、原油、燃油、生活污水、潤滑油、 淡水、輸送海水、冷熱水、飲用水、成品油、并且這些物質的溫度是不高于250度的蒸汽和顆粒粉狀 等介質的。因為這些物質主要是通過管道進行傳輸,管道傳輸過程中,這些物質肯定會經過傳力接頭 或者伸縮接頭這個連接處,那么連接處直接就關系到整個管道系統是否是一個良性的傳輸過程,這個 用途是非常重要而且直觀的,其中微妙之處就在于連接,一個傳承,一個傳力,這就是伸縮接頭的用 途。
公稱通徑DN | 管子外徑DW | 法蘭連接尺寸 | 密封面d | 總長L | 安裝尺寸L1 | 調節量 △ | ||||
法蘭外徑D | 螺栓孔中心圓直徑K | 螺栓孔徑DO | 螺栓 | |||||||
n/個 | Th | |||||||||
65 | 76 | 185 | 145 | 18 | 4 | M16 | 118 | 330 | 200 | 20 |
80 | 89 | 200 | 160 | 8 | 132 | |||||
100 | 114 | 220 | 180 | 156 | ||||||
125 | 140 | 250 | 210 | 184 | ||||||
150 | 168 | 285 | 240 | 22 | M20 | 211 | 340 | |||
200 | 219 | 340 | 295 | 266 | ||||||
250 | 273 | 395 | 350 | 12 | 319 | |||||
300 | 325 | 440 | 400 | 370 | 370 | 220 | 25 | |||
350 | 377 | 505 | 460 | 16 | 429 | |||||
400 | 426 | 565 | 515 | 26 | M24 | 480 | 380 | |||
450 | 480 | 615 | 565 | 20 | 530 | |||||
500 | 530 | 670 | 620 | 582 | ||||||
600 | 630 | 780 | 725 | 30 | 24 | M27 | 682 | 420 | 240 | |
700 | 720 | 890 | 840 | 794 | ||||||
800 | 820 | 1015 | 950 | 33 | M30 | 901 | 560 | 350 | 30 | |
900 | 920 | 1115 | 1050 | 28 | 1001 | |||||
1000 | 1020 | 1230 | 1160 | 36 | M33 | 1112 | ||||
1200 | 1220 | 1455 | 1380 | 39 | 32 | M36 | 1328 | 600 | 370 | |
1400 | 1420 | 1675 | 1590 | 42 | 36 | M39 | 1530 | 630 | ||
1600 | 1620 | 1915 | 1820 | 48 | 40 | M45 | 1750 | 670 | 380 | |
1800 | 1820 | 2115 | 2020 | 44 | 1950 | |||||
2000 | 2020 | 2325 | 2230 | 48 | 2150 | 690 | 400 | |||
2200 | 2220 | 2550 | 2440 | 56 | 52 | M52 | 2370 | 730 | ||
2400 | 2420 | 2760 | 2650 | 56 | 2570 | |||||
2600 | 2620 | 2960 | 2850 | 60 | 2780 | 820 | 450 | 40 | ||
2800 | 2820 | 3180 | 3070 | 64 | 3000 | |||||
3000 | 3020 | 3405 | 3290 | 60 | 68 | M56 | 3210 |